一戸建て
入善町上飯野中古住宅
| 価格 |
1,280万円(税込) |
所在地 |
下新川郡入善町上飯野547 |
| 交通 |
入善黒部バイパス(R8)1.4km 3分 |
- オススメPOINT
-
のどかな田園風景ひろがる築浅住宅
物件詳細
| 価格 |
1,280万円(税込) |
物件種目 |
中古住宅 |
| 所在地 |
下新川郡入善町上飯野547 |
| 交通 |
入善黒部バイパス(R8)1.4km 3分 |
| 築年月 |
住宅:2012年06月 車庫:2018年5月 |
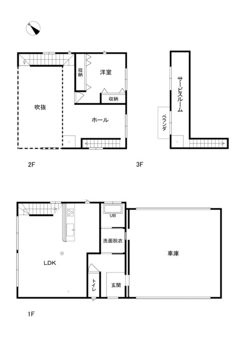
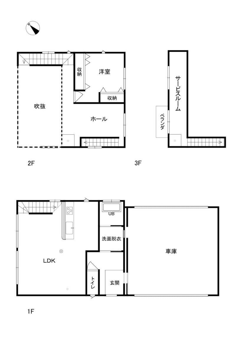
建物面積 |
住宅:99.18㎡ 車庫:41.97㎡ |
土地面積 |
公簿 236.00㎡ (71.38坪) |
| 間取り |
1SLDK+車庫 |
階建 / 階 |
住宅:3階建 車庫:平家建 |
| 土地権利 |
所有権 |
建物構造 |
住宅:木造かわらぶき 車庫:木造合金メッキ鋼板ぶき |
| 駐車場 |
2台 |
リフォーム |
- |
| 設備 |
・電気・井戸・下水 |
| 都市計画 |
非線引区域 |
用途地域 |
無指定 |
| 接道状況 |
北東側4.0m 公道 間口21.27m |
私道負担面積 |
- |
建ぺい率 / 容積率 |
60% / 200% |
セットバック |
- |
| 地目 |
宅地 |
地勢 |
- |
| 備考 |
・現況販売・売主契約不適合責任免責 |
| 現況 |
居住中 |
| 引渡し |
相談 |
取引態様 |
媒介 |
| 最終更新日 |
2025年11月22日 |
周辺地図
下新川郡入善町上飯野547
1
15
36.90672610192044, 137.4686957109725
周辺施設
| 入善町立飯野小学校 |
2705m |
入善町立入善西中学校 |
4720m |
| 入善町立いいの保育所 |
2750m |
ローソン入善上飯野店 |
550m |
| エネオス入善SS |
300m |
青木郵便局まで |
2395m |
|
|
|