ビル・一括マンション・その他
宇奈月温泉 喜泉閣
価格 |
3,000万円(税込) |
所在地 |
黒部市宇奈月町音澤1387 |
交通 |
富山地鉄本線 宇奈月温泉 徒歩10分 |
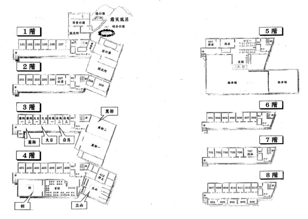
物件詳細
価格 |
3,000万円(税込) |
物件種目 |
売ホテル |
所在地 |
黒部市宇奈月町音澤1387 |
交通 |
富山地鉄本線 宇奈月温泉 徒歩10分 |
築年月 |
1974年03月 |
建物面積 |
6,265.90㎡ |
土地面積 |
公簿 6,499.19㎡ (1,965.99坪) |
間取り |
- |
階建 / 階 |
9階建 |
土地権利 |
所有権 |
建物構造 |
RC構造ジングル葺 |
駐車場 |
複数台 |
リフォーム |
昭和62年11月15日増築 |
設備 |
・温泉・露天風呂・ロビー・客室・大広間 |
都市計画 |
非線引区域 |
用途地域 |
無指定 |
接道状況 |
- |
私道負担面積 |
- |
建ぺい率 / 容積率 |
70% / 400% |
セットバック |
- |
地目 |
宅地・雑種地・山林 |
地勢 |
- |
備考 |
・現況販売・売主契約不適合責任免責 |
現況 |
空 |
引渡し |
相談 |
取引態様 |
媒介 |
最終更新日 |
2025年10月2日 |
周辺地図
黒部市宇奈月町音澤1387
1
15
36.81986534981422, 137.57785675007932
周辺施設
ローソン宇奈月温泉店 |
935m |
宇奈月郵便局 |
535m |
富山地鉄建設宇奈月駐車場 |
735m |
河田書店 |
555m |
北陸銀行宇奈月支店 |
550m |
|