一戸建て
中新川郡立山町浅生中古住宅
| 価格 |
980万円(税込) |
所在地 |
中新川郡立山町浅生170-12 |
| 交通 |
富山地鉄本線 越中三郷 徒歩7分 |
- オススメPOINT
-
富山地鉄越中三郷駅近く。ライフタウン浅生団地内
物件詳細
| 価格 |
980万円(税込) |
物件種目 |
中古住宅 |
| 所在地 |
中新川郡立山町浅生170-12 |
| 交通 |
富山地鉄本線 越中三郷 徒歩7分 |
| 築年月 |
1997年12月 |
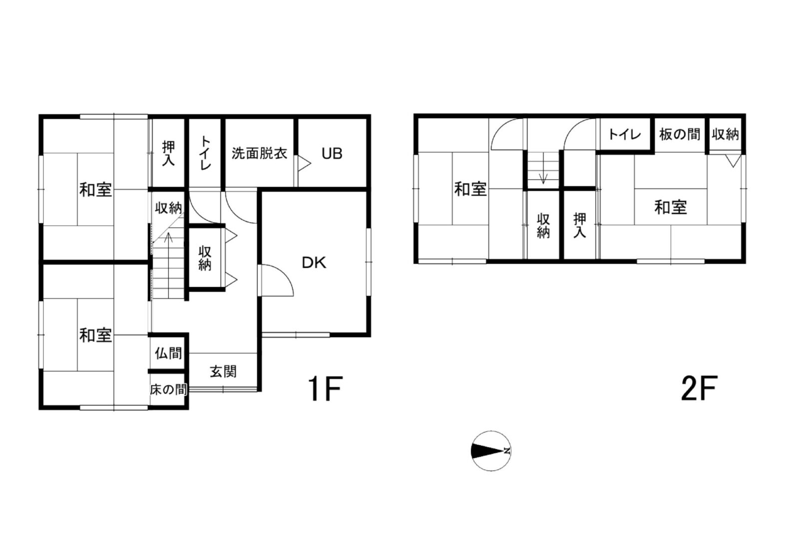
建物面積 |
83.44㎡ |
土地面積 |
公簿 222.41㎡ (67.27坪) |
| 間取り |
4DK |
階建 / 階 |
2階建 |
| 土地権利 |
所有権 |
建物構造 |
木造瓦葺 |
| 駐車場 |
1台 |
リフォーム |
- |
| 設備 |
・上水・下水・集中プロパン・電気 |
| 都市計画 |
非線引区域 |
用途地域 |
未指定 |
| 接道状況 |
東側7.6m 公道 間口12.4m・西側6.0m 公道 間口12.5m |
私道負担面積 |
- |
建ぺい率 / 容積率 |
60% / 200% |
セットバック |
- |
| 地目 |
宅地 |
地勢 |
- |
| 備考 |
・駐車場2台分増設予定 |
| 現況 |
売主 |
| 引渡し |
相談 |
取引態様 |
媒介 |
| 最終更新日 |
2025年11月27日 |
周辺地図
中新川郡立山町浅生170-12
1
15
36.70151206215835, 137.29395850700365
周辺施設
| 立山町立利田小学校 |
2400m |
立山町立雄山中学校 |
7680m |
| 三郷郵便局 |
940m |
スーパーセンターシマヤ立山店 |
1970m |
| エネオス利田SS |
600m |
舟橋村立図書館 |
1725m |
| 富山県常願寺川公園 |
2,015m |
|